Description de l'offre
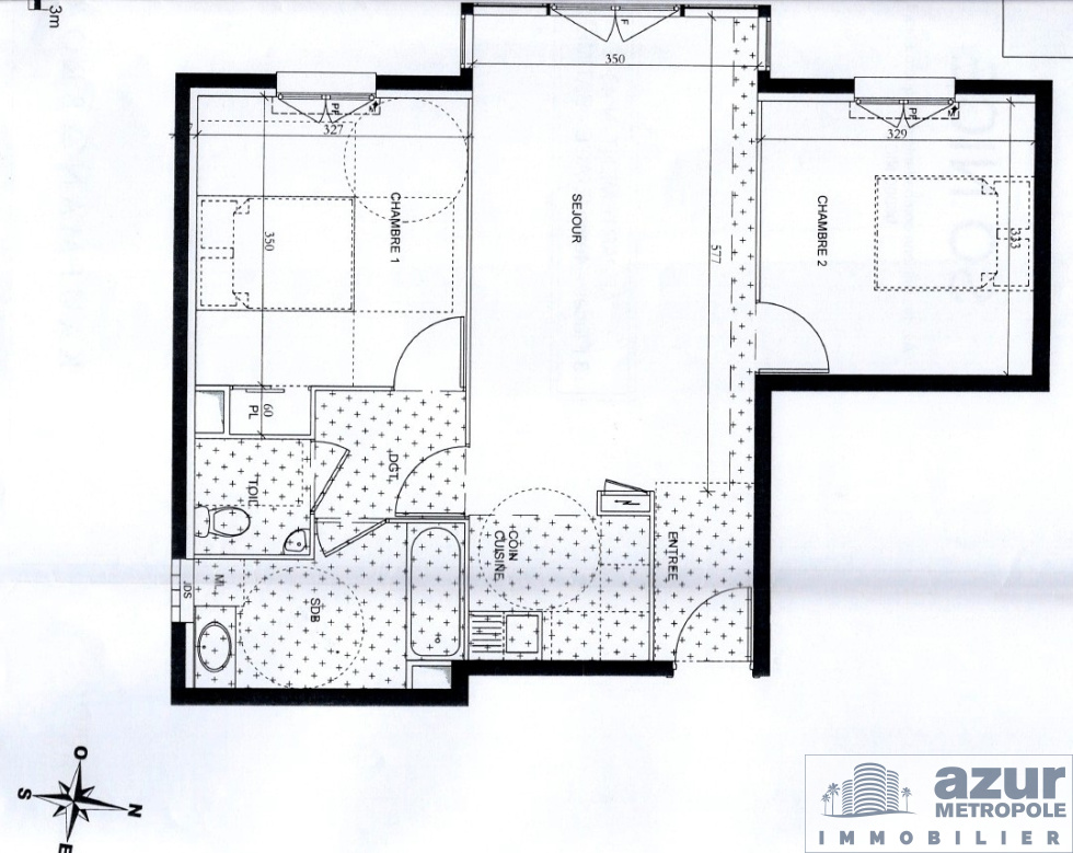
*** SOUS COMPROMIS *** EXCLUSIVITE, bien rare, emplacement idéal ! Exceptionnellement bien localisé au coeur du quartier recherché de la Libération, ses commerces, son marché et son cadre de vie idyllique au centre de Nice, à deux pas de la ligne 1 du tramway et de la gare SNCF, très bel appartement de type 3 Pièces d'une surface habitable Carrez de 61 m², en avant dernier étage d'une copropriété récente (2013), parfaitement sécurisée, aux normes PMR et idéalement situé dans une petite rue au calme et sans trafic routier. Agréable à vivre, très lumineux avec ses larges ouvertures au Sud et à l'Ouest et parfaitement agencé, le bien se compose d'un large séjour de 27 m² (avec cuisine américaine équipée) prolongé d'une véranda avec vue dégagée sur les collines, deux belles chambres (dont une avec placards intégrés), une grande salle de bains avec puits de lumière au Sud et un WC indépendant avec lavabo et rangements. La copropriété, récente et parfaitement bien entretenue, offre tout le confort nécessaire: climatisations intégrées (chaud/foid) dans toutes les pièces, volets électriques, porte et accès sécurisés, parties communes de bon standing, fibre, ... LOCATIONS SAISONNIERES AUTORISEES ! Possibilité d'acquérir, en sus du prix, un emplacement de parking privatif en sous-sol de la résidence (accès direct par ascenseur) Bien soumis au statut de la copropriété. Nombre de lots : 105. Charges courantes annuelles: 2.820 € (TOUT COLLECTIF Incluant charges communes, Climatisation chaud/froid, consommations en Eau Chaude et Eau Froide). Honoraires agence inclus charge vendeur.


